Floor -1

North-West
Apartments table
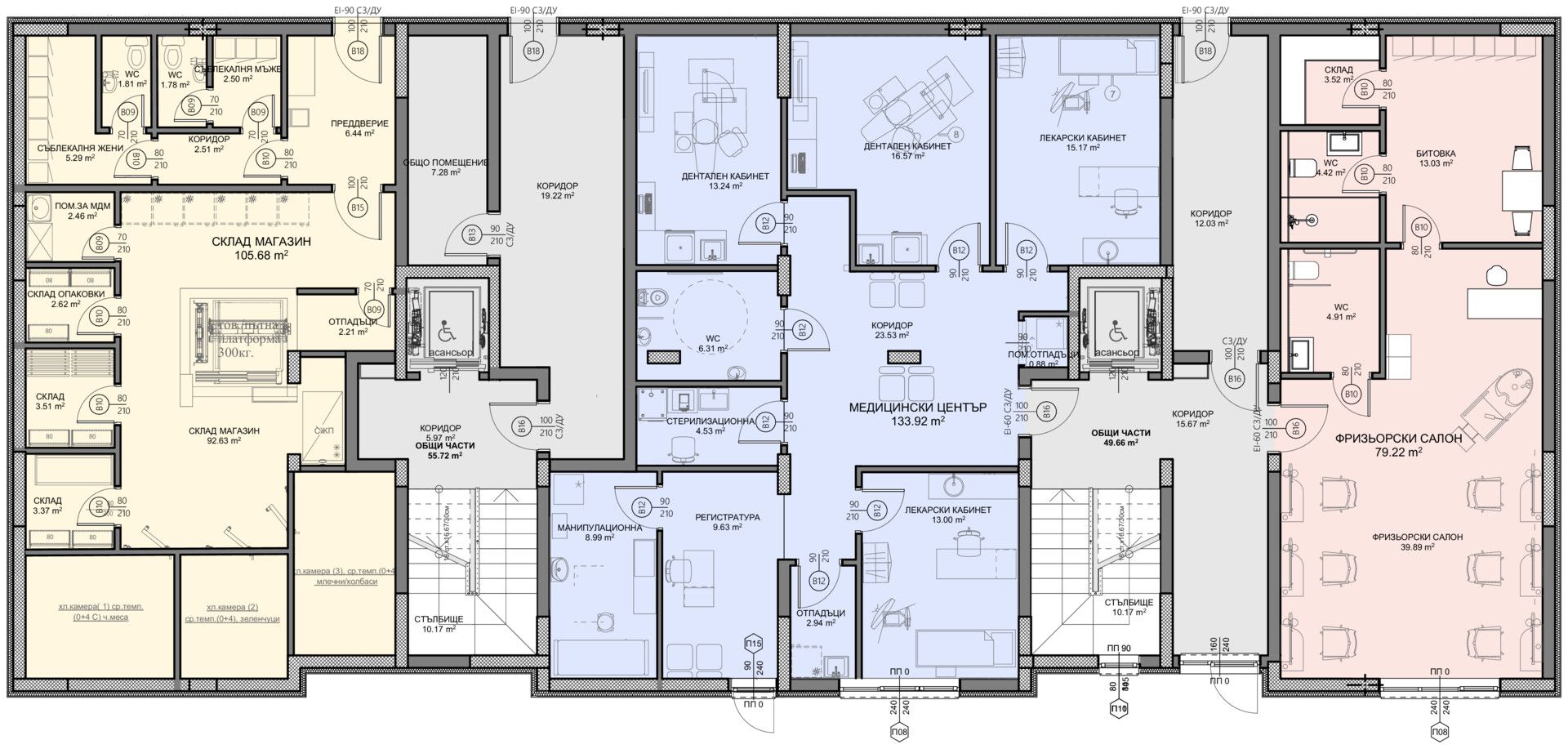
Floor -1 plan
Hair salon
Property
Hair salon
Sold
Building
9
Floor
-1
Medical center
Property
Medical center
Available
Building
9
Floor
-1
Total Area
151.99 m²
Price
278,100 €
Supermarket storage
Property
Supermarket storage
Available
Building
9
Floor
-1
Total Area
119.83 m²
Price
123,400 €
Newsletter background
+359 (889) 486 505
+359 (889) 486 505
+359 (888) 399 955
+359 (888) 399 955
sales@complexsuncity.com
sales@complexsuncity.com
Contacts
Contacts